Home
Applications
Short Term Holiday Accommodation
Consultations
Appeals
Successes
Objection Letters
Contact
Mail
LinkedIn
Consultations
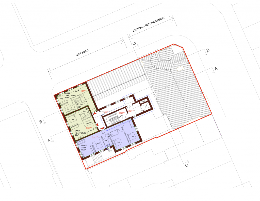
133-135 Commercial Street Newport